Кубообразный
Первый поставщик в Республику Беларусь.
Рейки длинной 3000 мм, 4000 мм, в нарезку под заказ.
Рейки шириной: от 20 до 200 мм мм.
Рейки высотой: от 20 до 200 мм мм.
Материал реек: Алюминий, Металл оцинкованный.
Группа горючести: Г1.
Схема сборки
Элементы системы Скандинавского C-дизайна

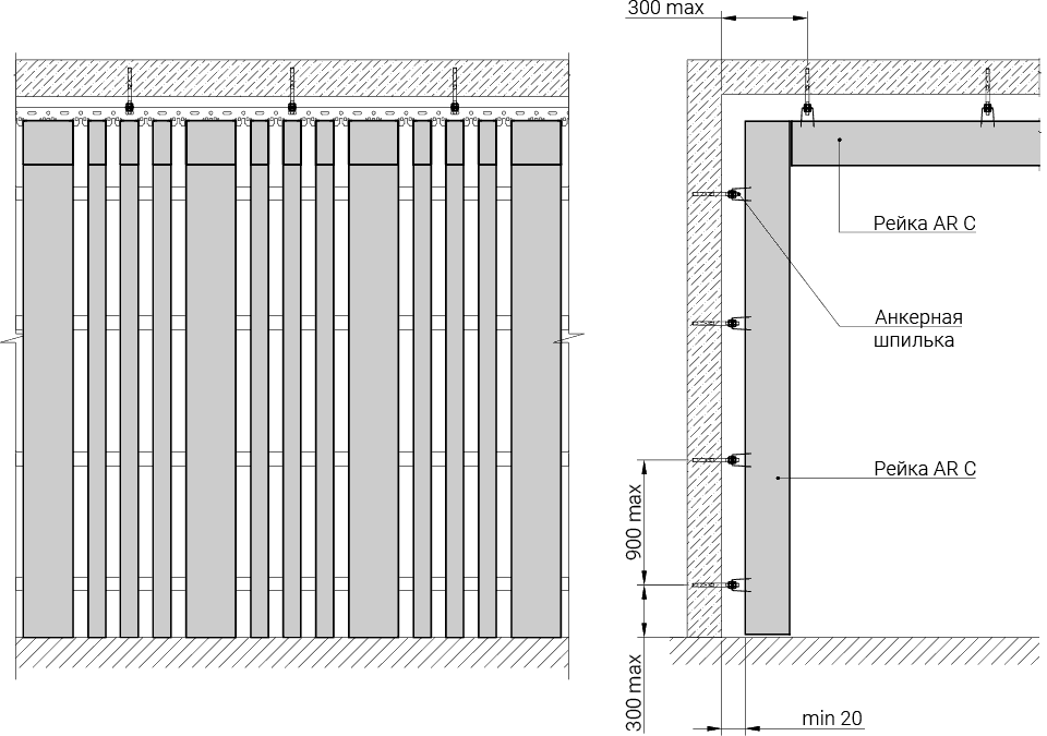
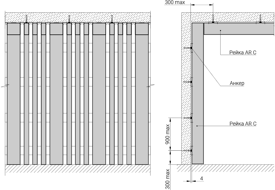
Стандартный монтаж

Монтаж на несущей направляющей S01

Комбинированный монтаж

Комбинированный монтаж на несущую направляющую S01

Заглушки штампованные и фасонные

Соединительные элементы для реек

Акустический потолок

Радиусный монтаж на несущую направляющую CD

Монтаж с минимальным отступом от чернового потолка

Криволинейный монтаж

Декоративная накладка AR CN на несущую направляющую

Непаралелльный монтаж на направляющем профиле

Двухуровневый монтаж дизайнерских потолков

Монтаж по веерообразному типу

Монтаж с переходом с плоскости потолка на стену

Монтаж с переходом с плоскости потолка на стену с минимальным отступом

Модель 1 дизайнерского потолка

Модель 2 дизайнерского потолка

Модель 3 дизайнерского потолка

Модель 4 дизайнерского потолка















